https://www.instagram.com/wundi_91/
Tiny Reborn
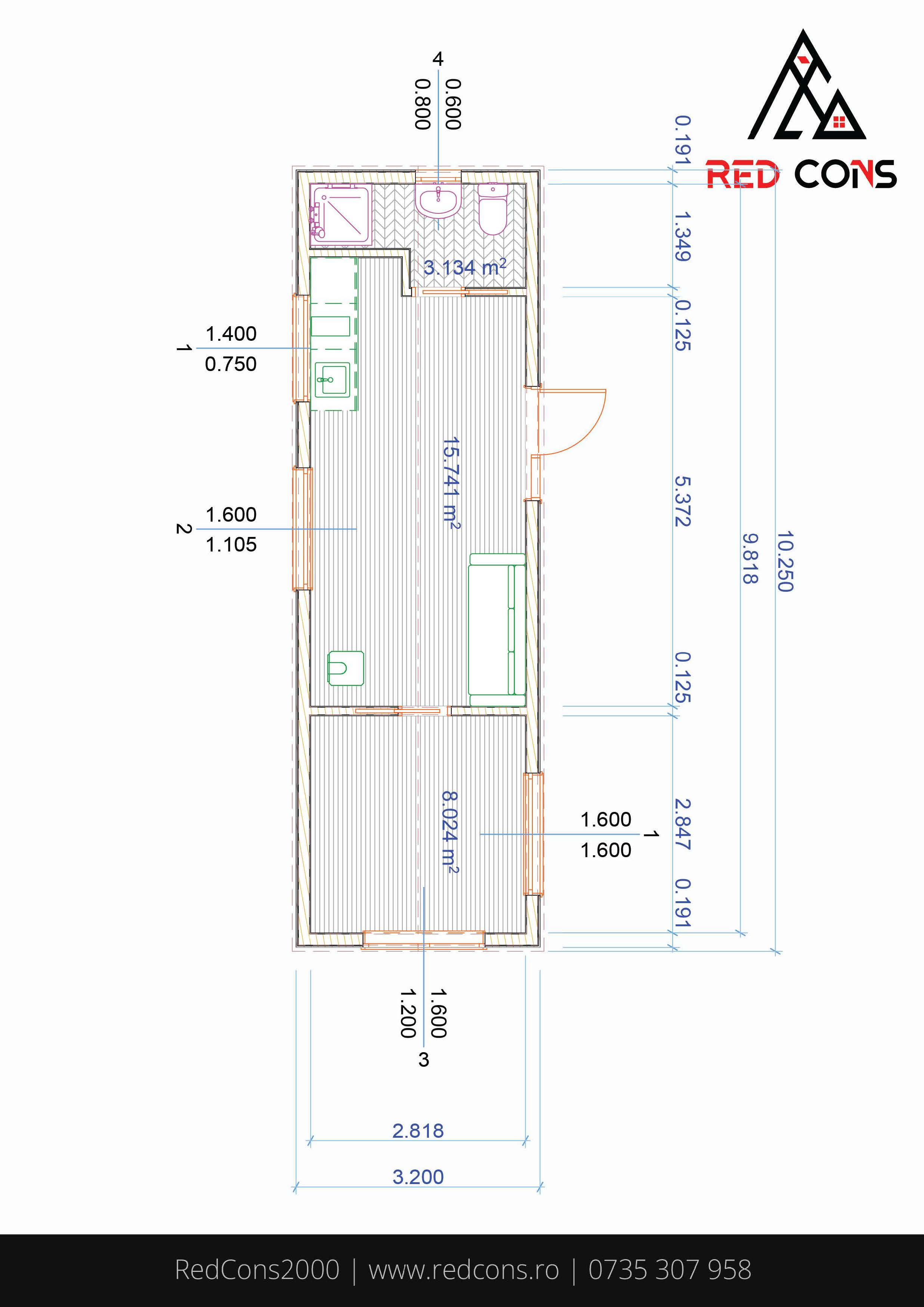
Dimensiuni Suprafață: 32.60 m² Lungime: 10.20 m Lățime: 3.20 m Înălțime: 3.50 m Structura perete Lambriu interior pin nordic Membrană anticondens Structură lemn Izolație vată bazaltică Membrană exterior Dublu sistem de șipci (vertical + orizontal) Tablă click exterior Dotări principale ● Structură lemn masiv ● Izolație vată bazaltică ● Lambriu pin nordic interior ● Baie complet echipată ● Încălzire în pardoseală ● Instalație electrică completă
Type
Tiny House
Client
Tiny Reborn
Details
Tiny Reborn
Dimensiuni Suprafață: 32.60 m² Lungime: 10.20 m Lățime: 3.20 m Înălțime: 3.50 m Structura perete Lambriu interior pin nordic Membrană anticondens Structură lemn Izolație vată bazaltică Membrană exterior Dublu sistem de șipci (vertical + orizontal) Tablă click exterior Dotări principale ● Structură lemn masiv ● Izolație vată bazaltică ● Lambriu pin nordic interior ● Baie complet echipată ● Încălzire în pardoseală ● Instalație electrică completă
Type
Tiny House
Client
Tiny Reborn
Details
Tiny Reborn
Dimensiuni Suprafață: 32.60 m² Lungime: 10.20 m Lățime: 3.20 m Înălțime: 3.50 m Structura perete Lambriu interior pin nordic Membrană anticondens Structură lemn Izolație vată bazaltică Membrană exterior Dublu sistem de șipci (vertical + orizontal) Tablă click exterior Dotări principale ● Structură lemn masiv ● Izolație vată bazaltică ● Lambriu pin nordic interior ● Baie complet echipată ● Încălzire în pardoseală ● Instalație electrică completă
Type
Tiny House
Client
Tiny Reborn
Details
















